Anantara Residences Airbnb Apartment
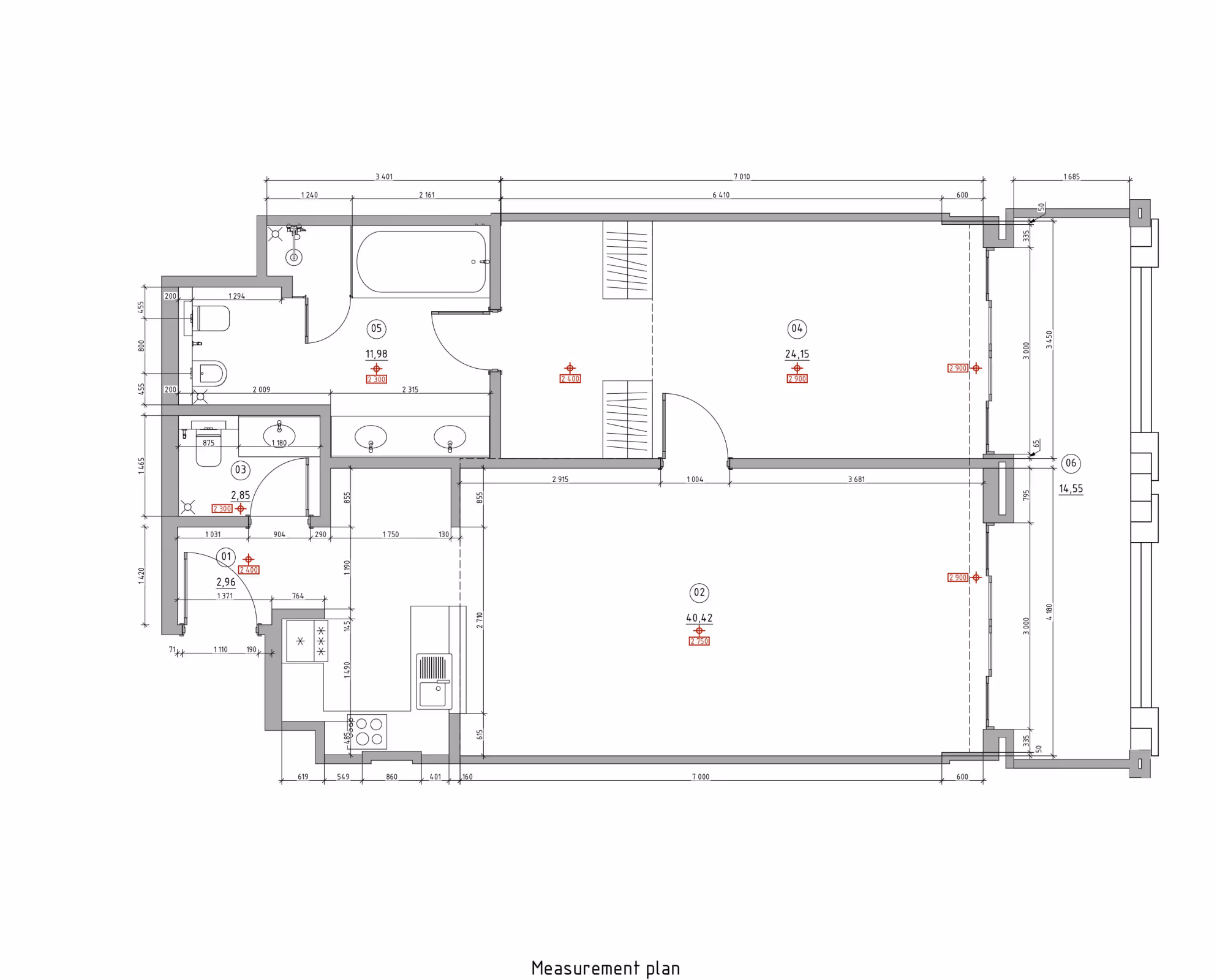
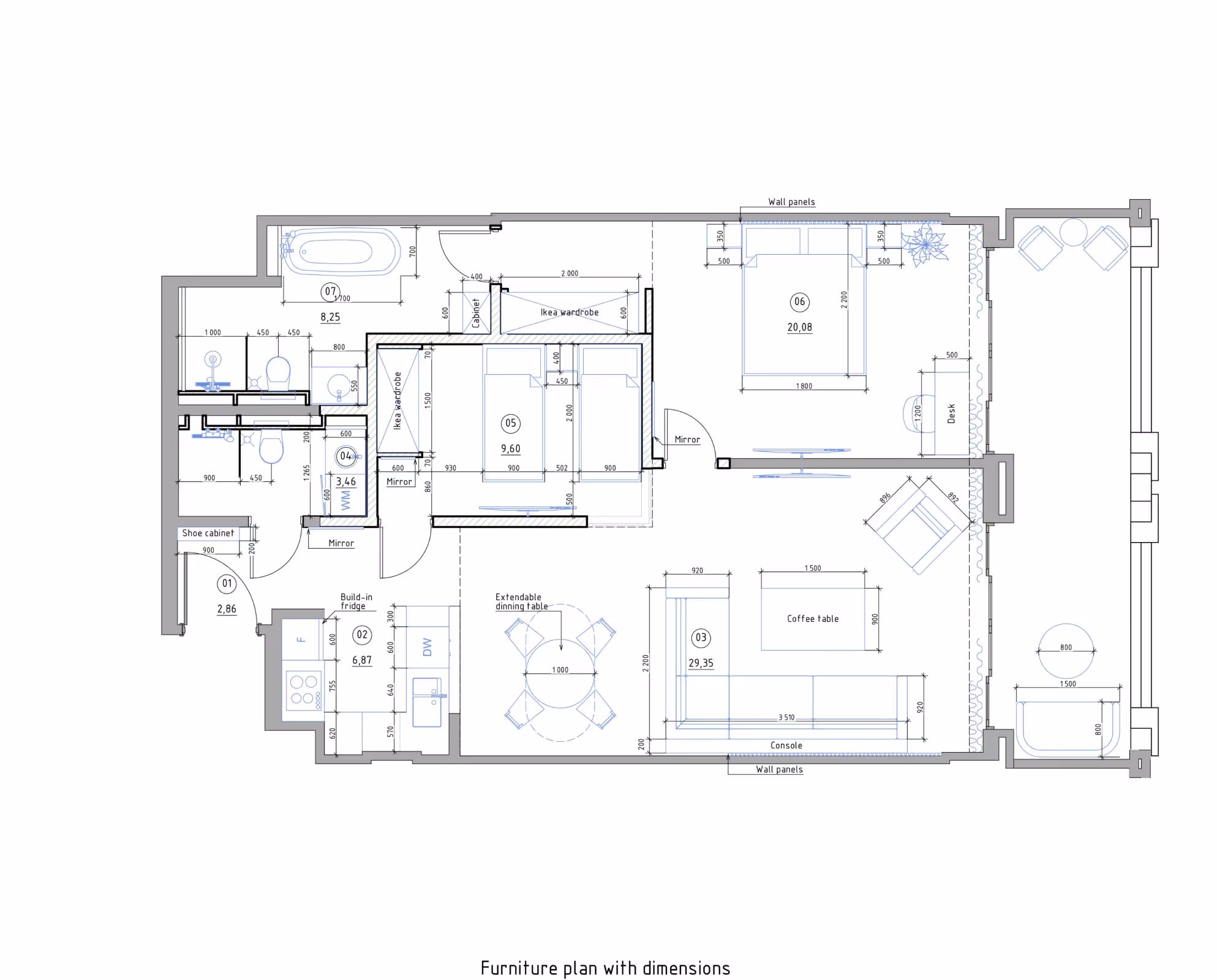
This apartment underwent a full renovation to convert it from a one-bedroom into a functional two-bedroom unit – one bedroom plus a study that serves as a second bedroom – specifically for Airbnb use. The change required complex approvals due to the structural reconfiguration. Every detail, from custom-built furniture to layered lighting, was designed to support flexible, modern living while ensuring comfort for both short stays and daily use.
In construction
Apartment
Design
NOC
Renovation
MEP
Procurement
Custom Furniture

























.avif)