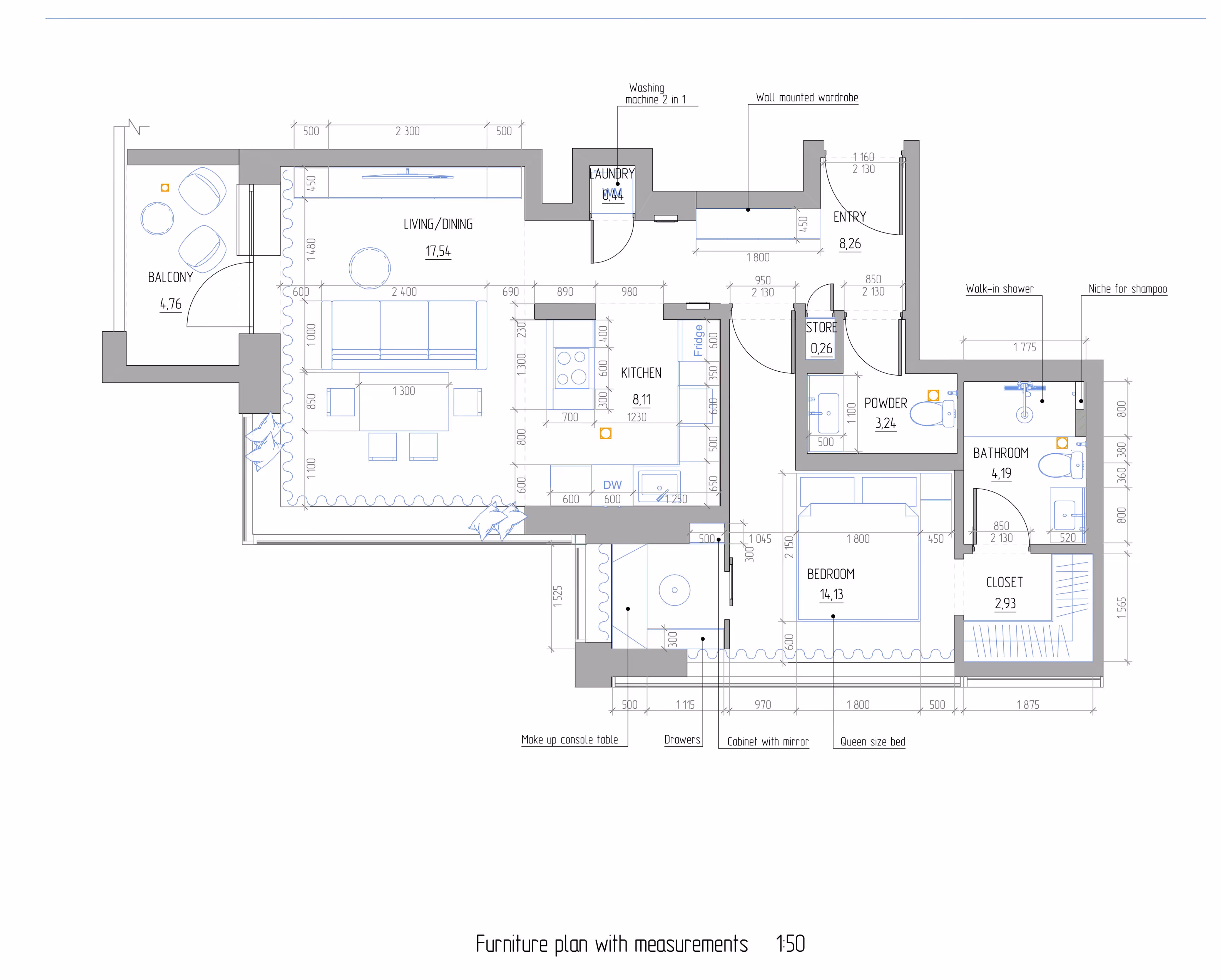
This 1BR apartment was renovated for the owner’s personal living with a focus on improving layout and technical functionality. A key structural modification involved removing the front kitchen wall to create an open connection between the kitchen and living area. Mechanical and electrical systems were partially upgraded, including the installation of a balcony door sensor that automatically switches off the air-conditioning when the door opens, improving energy efficiency. Interior finishes were updated, and custom-made furniture was installed to fit the revised layout.
In construction
Apartment
Design
NOC
Renovation
MEP
Procurement
Custom Furniture


































.avif)