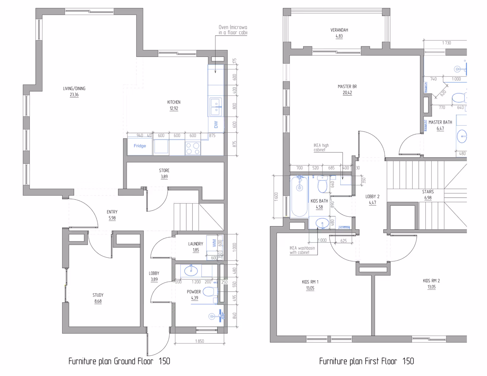
For flipping purposes this Springs 8 villa received a full design and build transformation – including custom furniture and smart space planning. The interior features clean, modern lines: matte kitchen cabinets, marble-effect countertops, and floating vanities with black fixtures for contrast. Lighting is soft and functional, surfaces are easy to maintain, and every room feels move-in ready.
In construction
Villa
Renovation
NOC
MEP
Design
Custom Furniture



























.avif)