Villa in Springs 14: Full Renewal
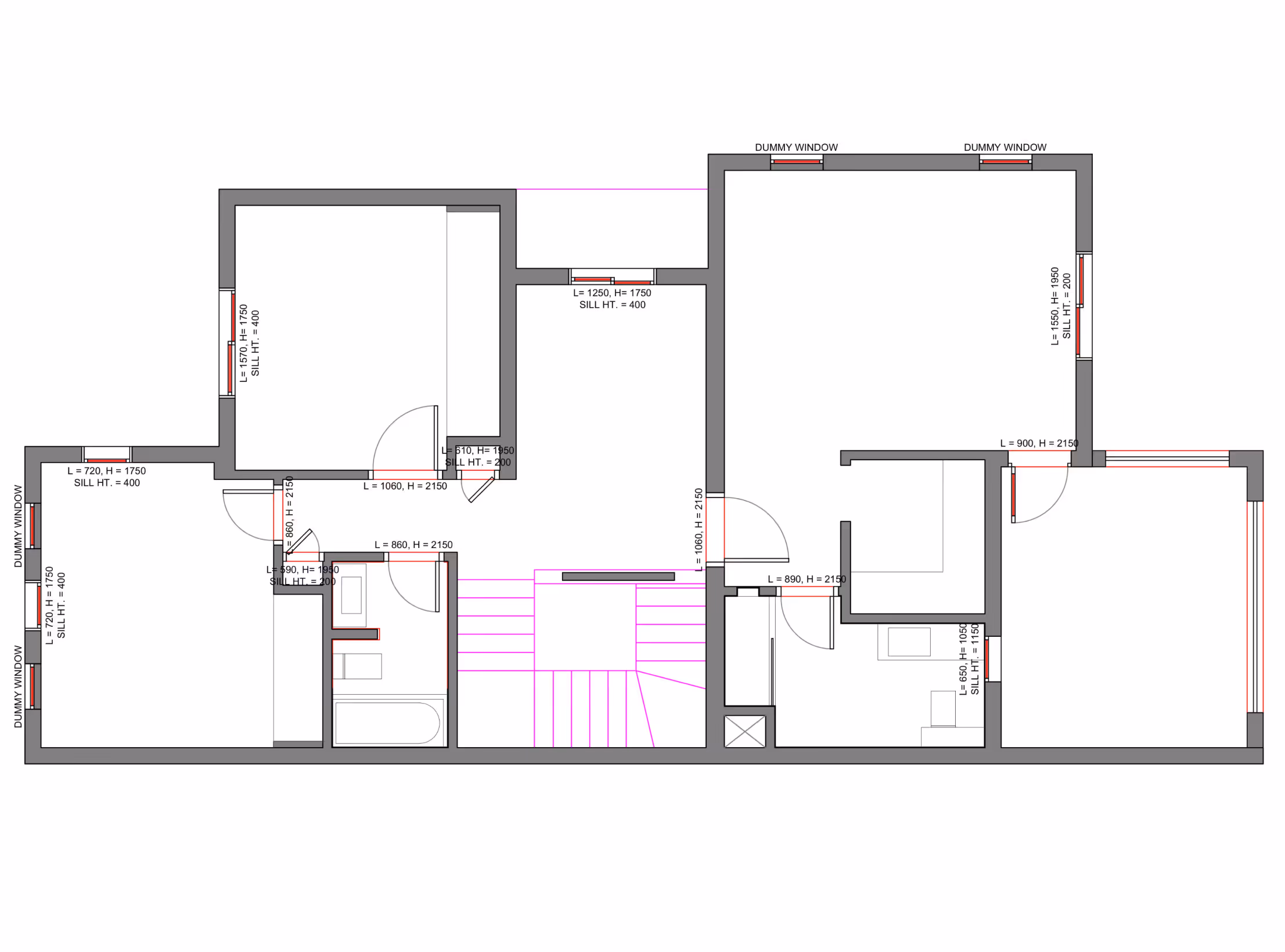
This villa is being transformed into a modern, cohesive home – beginning with the relocation of the kitchen and guest WC, which required full re-routing of water supply and water drainage. SPC flooring is installed throughout, and stair railings are fully replaced. Windows are enlarged to bring in more light, custom moldings are added, and data and camera wiring is run through walls and ceilings. The result will be a thoughtfully restructured, fully functional residence – clean in layout and resolved in execution.
In construction
Villa
Design
NOC
Renovation
MEP
Procurement
Custom Furniture

.avif)
.avif)
.avif)





















.avif)