Luxury Apartment in Fairway West Tower
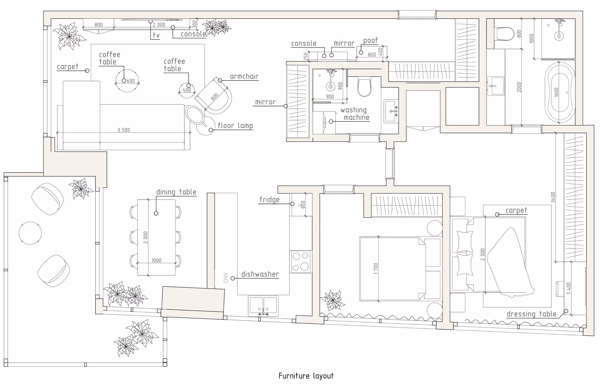
This project covered every stage – from design and building approvals to construction and custom furniture. Inside, clean modern lines define the space: matte cabinetry, marble-effect surfaces, and vertical wood slats with integrated lighting. Smart storage, seamless finishes, and premium details like backlit mirrors and brass taps add quiet luxury. The result is a refined, move-in-ready apartment – perfect for long-term living or high-end rental.
In construction
Apartment
Design
NOC
Renovation
MEP
Procurement
Custom Furniture


























.avif)