Apartment in Golf Tower 2
The project began with a complete redesign of this builder-finished apartment, followed by securing all required approvals. Every surface was updated – from wall tiles to flooring – while custom-made furniture was tailored to fit the new layout and aesthetic. The result is a unified, modern home that balances clean design with practical comfort for everyday use.
In construction
Apartment
Design
NOC
Renovation
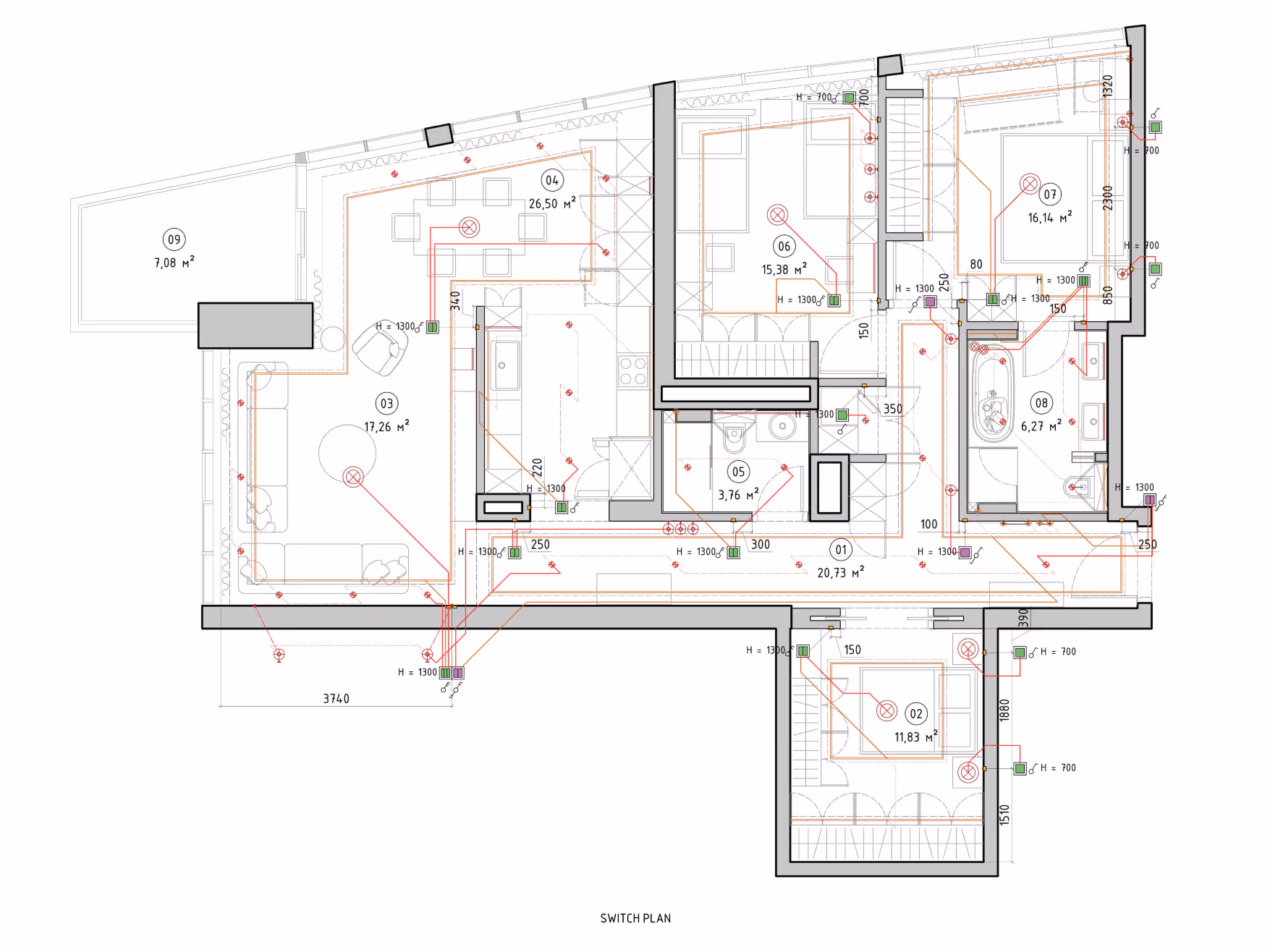
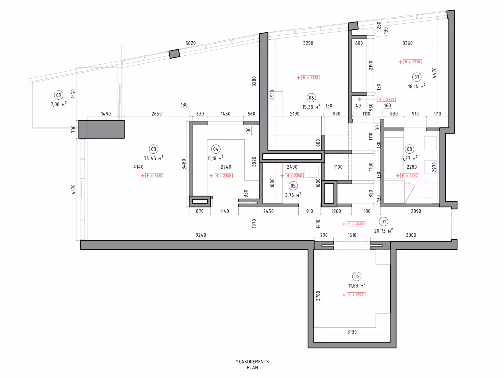
MEP
Procurement
Custom Furniture































.avif)